A-Energy class home in the Haabneeme beach area
Rohuneeme tee 28, Haabneeme alevik, Viimsi vald
248.30 M²1106 M² plot5 Rooms4 BedroomsTerraceFireplace3900 €
New on the rental market! If you're searching for a home where modern architecture, intelligent design, and the beauty of nature coexist seamlessly, this 248.3 m² residence in the heart of Haabneeme is crafted just for you. Located only 250 meters from the sandy shoreline, this home is ideal for someone who values quality, spaciousness and smart, thoughtful solutions.
Move-in date is from February 1st, 2026
Light. Form. Freedom.
The architecture of the house is striking – sharp, contemporary lines balanced with warm material choices create a presence that opens gently to its natural surroundings while maintaining complete privacy. Floor-to-ceiling glass surfaces bring in natural light and beautiful views, while a glazed terrace extends the living area outdoors, making it an all-season sanctuary. The landscaping is minimalist and inspired by the coastal setting, offering a harmonious blend of modern design and lush greenery.
This home is designed by the acclaimed architect Sten Ader (SKAD Architects), known for his award-winning residential and public buildings that embody timeless elegance and precision.
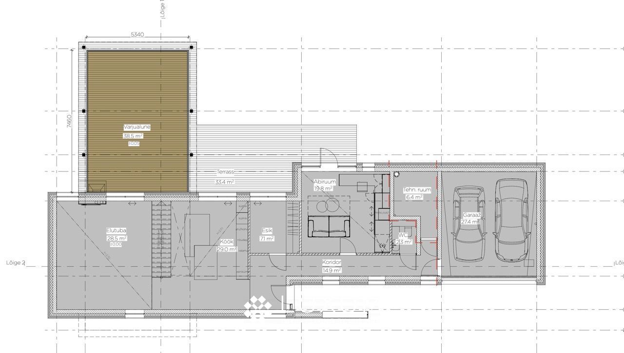
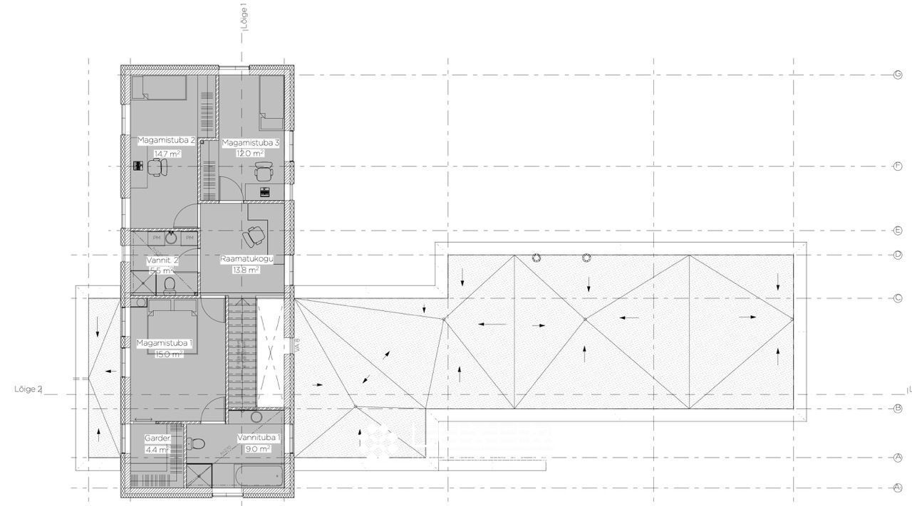
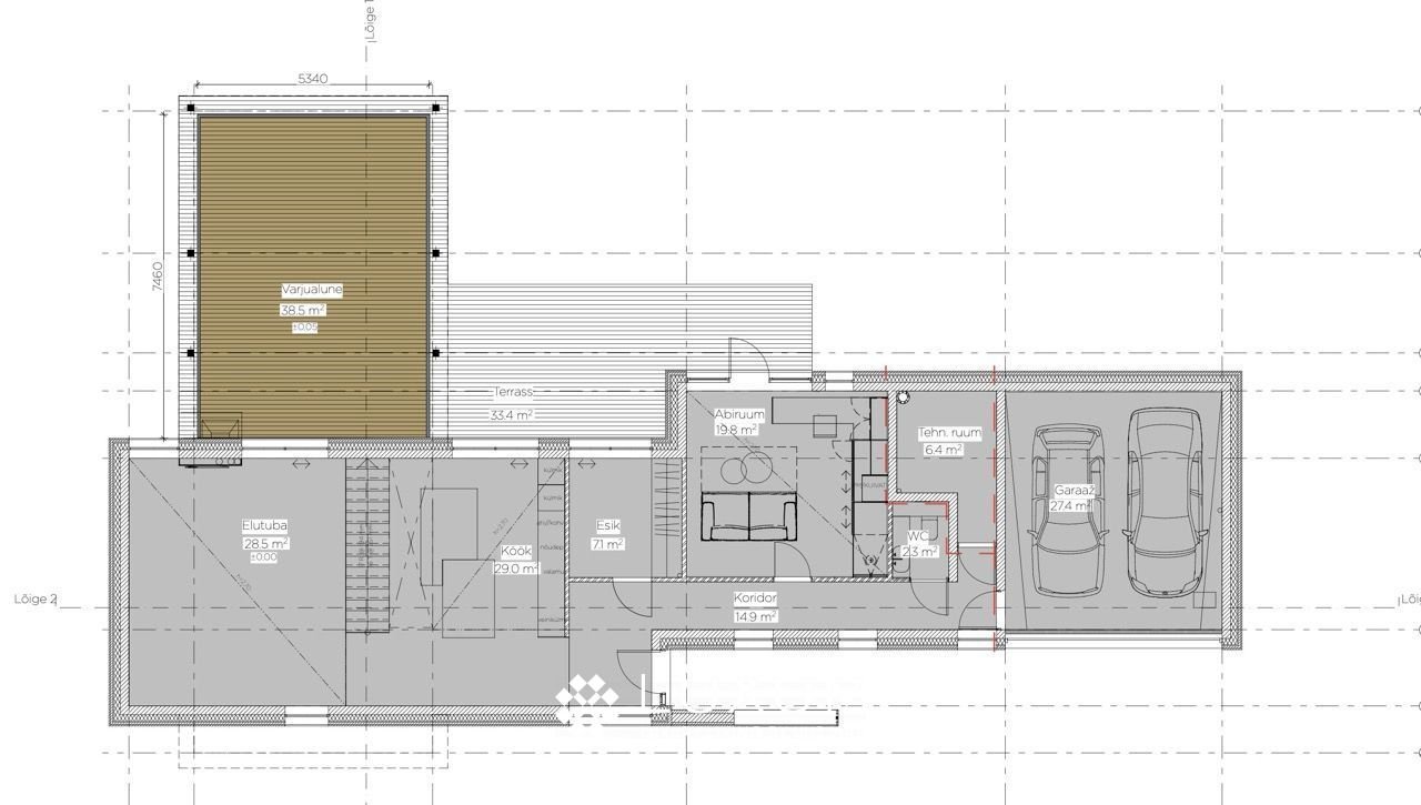
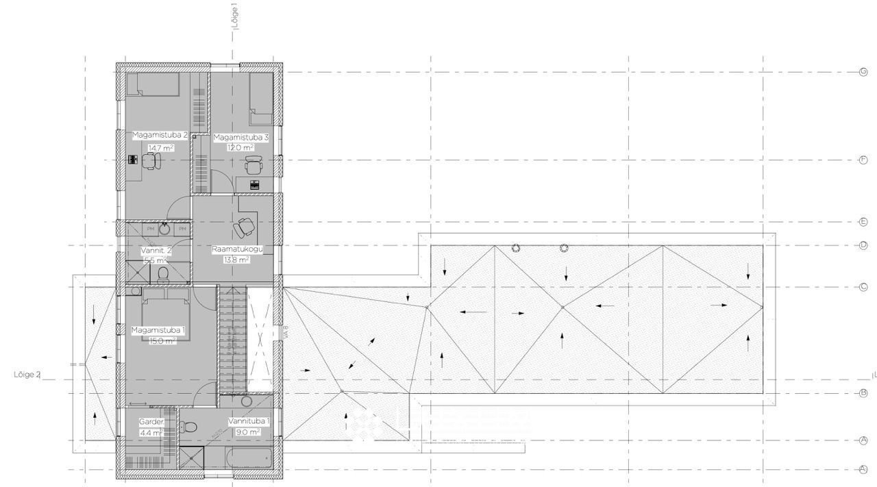
Layout – Functional Flow and Dynamic Space
First floor:
- Entrance hall with a practical walk-in wardrobe
- Spacious living room with a designer fireplace and access to the glazed terrace
- Kitchen with an integrated island,
Other objects
















































































































































