Open house 19. march 16.00-18.00!
Sõlme põik 3, Sõitme küla, Kuusalu vald
246.30 M²3633 M² plot4 Rooms3 BedroomsSaunaTerrace537 000 €
A-Energy Class Modern Villa Near the Sea in Kuusalu
In Kuusalu parish, Harju County, just a 40-minute drive from Tallinn’s city centre, a newly built A-energy class residence is now available. This is a rare opportunity to combine contemporary comfort with a peaceful, nature-oriented lifestyle. Designed for those who value tranquillity, privacy and proximity to the sea, this home offers architectural clarity and refined quality throughout.
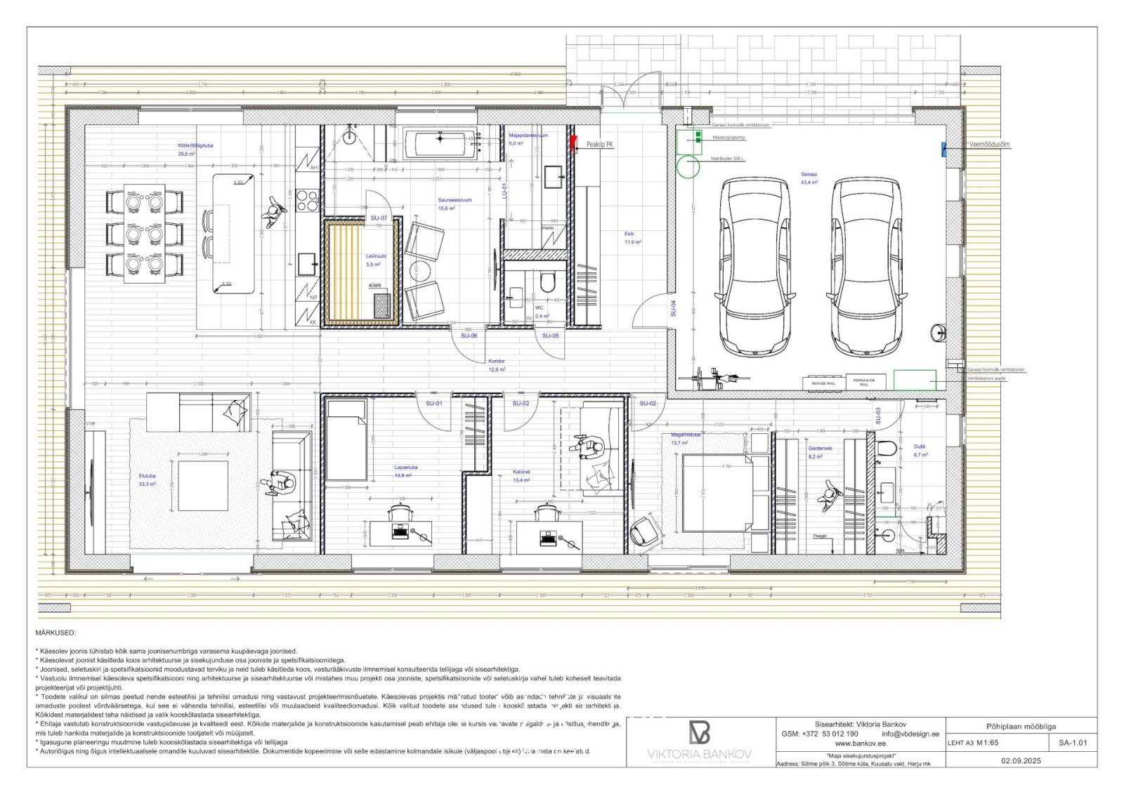
The property is defined by spaciousness, abundant natural light and a carefully considered layout. Thoughtfully selected interior materials and a well-structured floor plan create an environment where everyday living becomes a genuine pleasure.
ELEGANT SPATIAL LAYOUT
The heart of the home is a 61,4 m² open-plan living and kitchen area, where large windows fill the space with natural daylight. This generous setting is ideal for both family gatherings and elegant entertaining.
The primary bedroom measures 15 m² and is complemented by an 8,3 m² open wardrobe and a 6,8 m² en-suite bathroom, forming a private and functional suite. Two additional bedrooms of 13,8 m² and 12,9 m² provide flexibility for children, guests or a home office.
The 20,8 m² sauna and relaxation area create a private spa atmosphere for year-round enjoyment. A spacious entrance hall and adjoining corridor offer a welcoming arrival area, complemented by a separate utility room and a 42,4 m² garage for two cars.
Other objects














































































































